Toà tháp căn hộ The Madison Gateway Thảo Điền được đầu tư chăm chút đến từng chi tiết theo phong cách sống hiện đại của Châu Âu do SonKim Land kết hợp với Hamon làm chủ đầu tư.

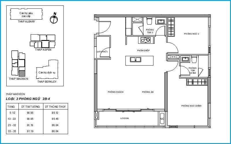
Thiết kế mặt bằng căn hộ The Madison Gateway Thảo Điền hoàn hảo đến từng chi tiết, mặt bằng phân bố đẹp và khoa học. Gateway Thảo Điền còn được gọi là căn hộ nghỉ dưỡng cao cấp 5 sao của Quận 2 bởi chủ đầu tư dành trọn khu vực công cộng cho hồ bơi và cây xanh.
Vì thế toàn khu căn hộ Gateway Thảo Điền luôn mát mẻ quanh năm cùng với thiết kế nội thất với thiết bị ngoại nhập đảm bảo cho cuộc sống cư dân một cách hoàn hảo nhất.

