Thông tin mô tả
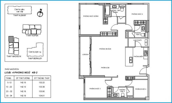
Cho thuê Gateway Thảo Điền phong cách 5 sao mật độ xây thấp, 4 phòng ngủ, phòng khách, 3 toilet, khu bếp. Căn hộ Gateway Thảo Điền diện tích thiết kế 142 m2, không gian đẳng cấp ban công rộng, view hướng Landmark 81 hướng nhìn toàn cảnh không khí thoáng mát. Căn hộ Gateway Thảo Điền trên lầu cao, nội thất full phối cảnh đa dạng kiến trúc rất riêng. Cho thuê giá thương lượng Đã cho thuê.
Dự án căn hộ Gateway Thảo Điền chủ đầu tư Công ty SonKim Land, dịch vụ khép kín môi trường trong lành. Căn hộ dự án Gateway Thảo Điền vị trí cực tốt gần trục giao thông, tại địa chỉ 02 Lê Thước, p. Thảo Điền tp. Thủ Đức.
Cho thuê Gateway Thảo Điền bàn giao uy tín hẹn xem nhà nhanh chóng, vui lòng liên hệ Phòng hỗ trợ thông tin. Cell phone 0906765092






