Zeitgeist là dự án mới có quy mô lớn nhất của chủ đầu tư GS E&C được đầu tư và phát triển tại khu Nam Sài Gòn và đang nhận được sự quan tâm chú ý từ đông đảo khách hàng.
Có nên mua căn hộ dự án Zeitgeist hay không? Có những lý do nào đáng để cân nhắc nhất về dự án? Với bài viết này, SaleReal Team sẽ thực hiện phân tích và cung cấp 1 số thông tin giúp quý khách có thể cân nhắc và lựa chọn 1 nơi an cư phù hợp.
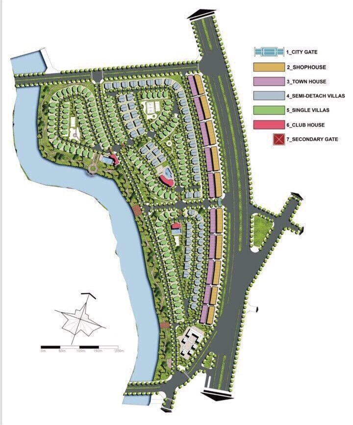
Video giới thiệu tổng quát khu đô thị Zeitgeist Nhà Bè:
Lý do nên sở hữu 1 căn hộ tại dự án Zeitgeist
Zeitgeist có vị trí tọa lạc cực đẹp

Với mặt giáp là 4 tuyến đường giao thông huyết mạch tọa lạc tại Nhơn Đức – Phước Kiểng, Nhà Bè như Nguyễn Hữu Thọ, Lê Văn Lương, Nguyễn Bình, Phạm Hữu Lầu,… dự án Zeitgeist tuyệt nhiên sở hữu nhiều giá trị hiện hữu.
Nhất là việc thực hiện kết nối giao thông đến các khu vực Miền Đông – Tây Nam Bộ nhanh chóng và thuận tiện.
Đồng thời, căn hộ Zeitgeist cũng có mặt giáp Rạch Ông Bốn uốn lượn, xẻ sâu vào bên trong dự án, tạo nên 1 môi trường sống trong lành, mát mẻ cho cộng đồng cư dân.
Ngoài ra, quanh dự án Zeitgeist còn có sự phát triển cực kỳ nhanh chóng của hạ tầng giao thông với cao tốc Bến Lức – Long Thành, tuyến đường Đặng Nhữ Lâm, nút giao thông Nguyễn Hữu Thọ – Nguyễn Văn Linh,.. cùng hàng loạt các tuyến đường như Lê Văn Lương, Nguyễn Hữu Thọ cũng được nâng cấp mở rộng.
Nhờ đó mà khi an cư tại Zeitgeist, không chỉ giúp cư dân có thể thực hiện liên kết vùng dễ dàng và nhanh chóng mà còn ẩn chứa nhiều tiềm năng giá trị lâu dài.
Quy mô Gs Nhà Bè

Nếu như tại khu đô thị mới Thủ Thiêm nổi bật với dự án Thủ Thiêm Xi đắc địa thì Zeitgeist là dự án có quy mô lớn nhất mà chủ đầu tư GS Engineering & Construction từng thực hiện tại Việt Nam với tổng diện tích quy hoạch lên đến 350ha.
Tại đây, chủ đầu tư phát triển đa dạng các loại hình nhà ở, bao gồm cả khu cao tầng, thấp tầng và nhiều phân khu chức năng khác nhau tạo thành 1 khu đô thị hoàn chỉnh.
Uy tín chủ đầu tư GS E&C

Thực hiện dự án Zeitgeist đó chính là tập đoàn danh tiếng hàng đầu đến từ Hàn Quốc, đã có trên 50 năm kinh nghiệm và đã thực hiện hàng trăm dự án lớn nhỏ ở nhiều lĩnh vực khác nhau, từ hạ tầng cho đến công trình dân dụng, nhà xưởng, văn phòng, khu đô thị, nhà ở,…
Không chỉ là ở Việt Nam, chủ đầu tư GS E&C còn gặt hái được nhiều thành công – thành tựu lớn trên thị trường bất động sản toàn thế giới với hơn 30 quốc gia, hàng triệu khách hàng và đối tác tin cậy.
Chất lượng môi trường sống tại khu đô thị Zeitgeist
Cũng như các khu đô thị khác, biệt thự Zeitgeist được quan tâm phát triển đầy đủ các tiện nghi sống. Tuy nhiên, điểm nhấn ở sản phẩm này đó chính là các tiện ích được phân chia thành nhiều khu chức năng, chi tiết mỗi khu được thực hiện khá linh hoạt.
Đồng thời có sự kết hợp với các yếu tố tự nhiên, như mảng xanh và tiện ích mặt nước, đảm bảo xây dựng 1 môi trường sống trong lành mát mẻ, an ninh và thoải mái cho cộng đồng cư dân tương lai.
Từ những thông tin đó có thể thấy, dự án Zeitgeist đã được lên kế hoạch rất chi tiết và tỉ mỉ mà SaleReal thấy rằng, đây là 1 trong những sản phẩm khu Nam đáng được cân nhắc.
Hiện giá bán các căn hộ tại đây vẫn đang được chúng tôi cập nhật. Quý khách quan tâm đến các vấn đề khác liên quan đến nhà phố Zeitgeist có thể liên hệ trực tiếp để được tư vấn tận tình và kỹ lưỡng hơn.

